Empat hari bercuti with no ofis job, no pc..but full with jahit menjahit..tekan keyboard ni time opis hour jer..kat umah jgn harapla nk ngadap pc ker laptop ker..no time..tambah2 pulak dlm ms 4 hari cuti br ni nk setelkan bj fren n ank dia skali..so georgeous tau 2 branak ni pakai bj2 tu nnt...yg aku nk pujinyer pandai pulak fren aku nama che ku sabihah ni memikirkan sesuatu yg aku x pernah pikir..kain lining tp wat baju kurung moden kat dlm...so 2-2 baju leh pakai...bijak2..
tp kn dlm tempoh nk masuk tahun baru ni dlm kepala ni asyik ingat kat rumah baru tu jer...bila leh masuk..x sbr dah ni..tp better proceed segala benda mcm loan & lawyer fee next year..dgr khabarnya lawyer fee diturunkan 50%.so, benda yang baik ni xleh wat terburu2.baik planning betul2.dats y la we all tgg next year br nk proses..janji umh tu dah di booking...
 |
| Pandangan hadapan |
sebenarnya bagus jugak leh masuk lambat..boleh la we all kumpul duit utk beli fittings, renovate skit, cat balik umh ikut kaler yg nk, tambah siling kapur, beli perabut...dlm ms 3 bulan leh la cr duit...
 |
| Pandangan sisi |
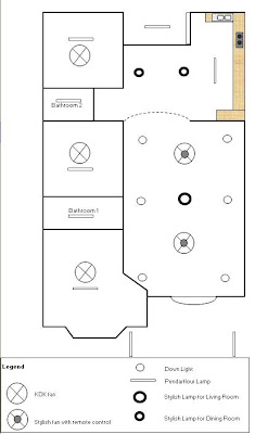
Semalam dah survey satu kedai lighting..rsnya dah nampak kot design camner nk choose lampu n kipas nnt..semalam pun i dah tau la camner taste hubby i..ok jugakla design lampu yg dia nk..janji kipas mesti ada remote control..
 |
| Close up sikit depan rumah ni..porch leh park 2 kereta..tp rsnya next planning we all nk build satu porch kat sisi depan rumah ni..change gate asal to sliding gate so lehla park keter bwh porch tepi n make clear depan pintu..br la rs lega..takla rimas tgk depan pintu kan. |
 |
| Tepi rumah ni ada TNB sub station.so, tanah kat belakang TNB tu jadi part of rumah ni.jadi ada la space kat belah tepi rumah ni utk dibangunkan sbg tempat main ank2 |
 |
| Plan nyer nk la tanam 2 btg pokok mempelam, pandan, serai, pokok limau, pokok kari kat hujung tanah ni.selebihnya nak pasang paver block so xyahla nk kena trim rumput next time. |
 |
| Ruang dapur tu kitorang nak bina satu dinding c/w arch kat dining tu.so separate la with living room. |
 |
| inila Furniture Layout yang aku draft. Nnt senang skit nk arahkan org susun perabot..ewah2 ada hati nk arahkn org tu.. |
 |
| Susun atur fittings |
 |
| Cadangan Landscape kat tepi rumah |
wahhh...bestnye dah ade rumah...tumpang gembira...mest tak sabar nak renovate segala bagai kann..hihi...
ReplyDelete